nowa oferta
mieszkanie na sprzedaż - Warszawa, Białołęka

Warszawa, Białołęka
mieszkanie na sprzedaż

WAW-MS-12521

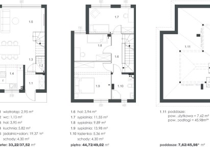
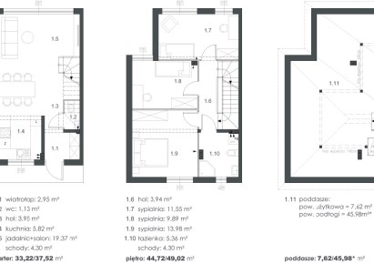
MIESZKANIE DWUPOZIOMOWE 102m2 + 158m2 tarasu Czteropokojowe mieszkanie położone w nowo powstającej inwestycji na Białołęckich Nowodworach. Pierwszy poziom to dwie sypialnie oraz łazienka. Na drugim poziomie odnajdziemy przestrzeń 58m2 z salonem, kuchnią, sypialnią ...

Powierzchnia
102,00 m2
Piętro
3
Pokoje
4 pokoje
Cena za m2
12 088,24 zł
cena 1 233 000
mieszkanie na sprzedaż - Warszawa, Białołęka
nowa oferta
mieszkanie na sprzedaż - Legionowo

Legionowo
mieszkanie na sprzedaż

WAW-MS-12520

Mieszkanie 86m2 + 30m2 ogródka w nowo powstającej kameralnej inwestycji budynków w zabudowie bliźniaczej.  Parter budynku to przestronny salon z aneksem kuchennym o powierzchni łącznej 26m2. Poziom ten uzupełniają przedpokój oraz wc. Na drugim poziomie odnajdziemy ...

Powierzchnia
86,00 m2
Pokoje
5 pokoi
Cena za m2
11 046,51 zł
cena 950 000
mieszkanie na sprzedaż - Legionowo
nowa oferta
mieszkanie na sprzedaż - Warszawa, Mokotów

Warszawa, Mokotów
mieszkanie na sprzedaż

WAW-MS-12517

Cenisz sobie luksusowe otoczenie, projekty, które charakteryzują się wyjątkowością? Jeśli tak to oferta jest skrojona pod Ciebie. Przestronny 3 pokojowe mieszkanie w powstającym na warszawskim Mokotowie apartamentowcu.   Do dyspozycji mieszkańców między innymi: ...

Powierzchnia
71,00 m2
Piętro
1
Pokoje
3 pokoje
Cena za m2
17 281,69 zł
cena 1 227 000
mieszkanie na sprzedaż - Warszawa, Mokotów
nowa oferta
mieszkanie na sprzedaż - Warszawa, Mokotów

Warszawa, Mokotów
mieszkanie na sprzedaż

WAW-MS-12516

APARTAMENT 102m2 - MOKOTÓW Mieszkanie położone w nowo powstałej inwestycji na warszawskim Mokotowie. Do dyspozycji mamy część dzienną w którą wchodzi przestronny salon z kuchnią (możliwość wydzielenia) o powierzchni 40m2 oraz część nocna z trzema sypialniami odpowiednio ...

Powierzchnia
102,00 m2
Piętro
2
Pokoje
4 pokoje
Cena za m2
17 843,14 zł
cena 1 820 000
mieszkanie na sprzedaż - Warszawa, Mokotów
nowa oferta
mieszkanie na sprzedaż - Warszawa, Mokotów

Warszawa, Mokotów
mieszkanie na sprzedaż

WAW-MS-12515

Kompaktowe 3 pokojowe mieszkanie położone w pobliżu toru łyżwiarskiego Stegny.  Trzypokojowe mieszkanie położone na warszawskich Stegnach w nowo powstającej inwestycji. Do dyspozycji mamy przestronny salon z aneksem o powierzchni 22m2 oraz dwie sypialnie po 12m2 ...

Powierzchnia
60,00 m2
Piętro
3
Pokoje
3 pokoje
Cena za m2
17 066,67 zł
cena 1 024 000
mieszkanie na sprzedaż - Warszawa, Mokotów
nowa oferta
mieszkanie na sprzedaż - Warszawa, Białołęka

Warszawa, Białołęka
mieszkanie na sprzedaż

WAW-MS-12514

Jedyne takie mieszkanie na Białołęce - 77m2 + 33m2 BALKONU Mieszkanie w najbardziej prestiżowym budynku na warszawskiej Białołęce.  Inwestycja to połączenie - kameralności - tylko 37 mieszkań w budynku - wyjątkowego usytuowania - przy Wale Wiślanym - komunikacji ...

Powierzchnia
77,00 m2
Piętro
1
Pokoje
4 pokoje
Cena za m2
14 662,34 zł
cena 1 129 000
mieszkanie na sprzedaż - Warszawa, Białołęka
Kryteria wyszukiwania

Ta strona wykorzystuje pliki cookies w celach statystycznych oraz w celu dostosowania naszych serwisów do indywidualnych potrzeb klientów. Zmiany ustawień dotyczących plików cookie można dokonać w dowolnej chwili modyfikując ustawienia przeglądarki. Korzystanie z tej strony bez zmian ustawień dotyczących cookies oznacza, że będą one zapisane w pamięci urządzenia.

rozumiem