Mieszkanie na sprzedaż Warszawa, Śródmieście, Muranów, Dzielna

2 pokoje
57.00 m²
15 771,93 zł/m2
3 piętro
WAW-MS-12548
Oblicz ratę kredytu

899 000 zł

Mieszkanie na sprzedaż

Szczegóły oferty

Symbol oferty WAW-MS-12548
Powierzchnia 57,00 m²
Liczba pokoi 2
Liczba sypialni 2
Rodzaj budynku kamienica
Technologia budowlana cegła
Standard
Opłaty w czynszu CO, Części wspólne, fundusz remontowy, Winda, woda/ryczałt na wodę, wywóz nieczystości
Piętro 3
Liczba pięter w budynku 6
Stan lokalu do odświeżenia
Okna PCV
Instalacje częściowo wymienione
Winda tak
Liczba wind 1
piwnica tak, 2,00 m²
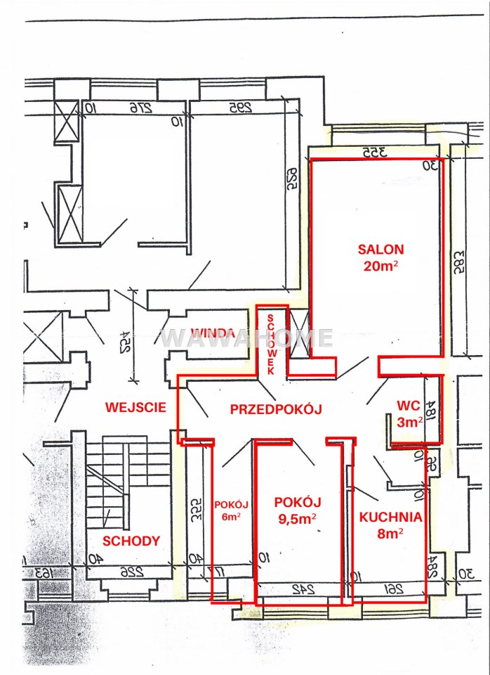
Pomieszczenia
Typ łazienki razem z wc
Powierzchnia łazienki [m2] 3,6 m2
Magdalena Michałowska

Magdalena Michałowska

Agent

Napisz wiadomość 4 Ofert

Opis nieruchomości

DZIELNA — MURANÓW

Mieszkanie, które rośnie z człowiekiem. Dzielnica, która daje wolność. Adres, który czeka na kogoś wyjątkowego.

Są miejsca, które nie potrzebują krzyczeć, żeby przyciągać.
Muranów jest jednym z nich.

To dzielnica, która łączy w sobie rzeczy pozornie sprzeczne:
spokój i miejskość, historię i nowoczesność, kulturę i codzienną wygodę.
To przestrzeń dla ludzi, którzy chcą żyć świadomie — blisko centrum, ale nie w jego chaosie.
Dzielna 17B jest sercem tej równowagi.

To mieszkanie było domem dla dwojga, potem dla czwórki.
Przyjmowało poranki wschodnim światłem i kończyło dni złotem zachodu.
Dziś czeka na kogoś, kto zobaczy w nim to, co najważniejsze:
potencjał, lekkość, funkcjonalność i prawdziwą miejskość.

---

PRZESTRZEŃ, KTÓRA DAJE WIĘCEJ

56 m² zaprojektowane tak, by działały w każdym etapie życia.

• 3 pokoje – elastyczne, ustawne, pełne światła
• Osobna kuchnia – poranne centrum domu
• Dwustronny układ – wschód i zachód, naturalny rytm dnia
• Schowek – ukryty bohater codzienności
• Piwnica – dodatkowa przestrzeń
• Ciche sypialnie – okna na podwórko
• Grube mury – cisza, ciepło, komfort

Mieszkanie jest po lekkim odświeżeniu —  otwarte na Twoją wizję.

---

BUDYNEK Z HISTORIĄ

Odrestaurowany, zadbany, z: odnowionymi klatkami, windą, która ułatwia codzienność, sąsiadami, którzy tworzą dobrą atmosferę. To miejsce, gdzie ludzie żyją obok siebie z kulturą i spokojem.

---

MURANÓW — DZIELNICA, KTÓRA ŁĄCZY

Muranów to nie jest „kolejna część Warszawy”.
To dzielnica z duszą.

Łączy:

• miejskość bez hałasu,
• historię bez ciężaru,
• kulturę bez nadęcia,
• zieleń bez oddalania się od centrum,
• codzienność bez kompromisów.
To miejsce dla ludzi, którzy chcą żyć blisko wszystkiego, ale nie w biegu. Dla tych, którzy cenią autentyczność, rytm miasta i jego prawdziwe oblicze.

---

CODZIENNOŚĆ, KTÓRA SMAKUJE

Poranek

Café Muranów – kawa z widokiem na kino.
Aromat – świeże pieczywo.
Skwer Willy’ego Brandta – kilka minut ciszy.

Dzień

Praca w centrum – 5–10 minut komunikacją.
Lunch w Barze Gdańskim, AïOLI, Królikarni lub w Fabryce Norblina.
Zakupy w Hali Mirowskiej.

Popołudnie

Plac zabaw na Nowolipkach.
Park Krasińskich – oddech w zieleni.
Kromki – szybkie tosty.

Wieczór

Film w kinie Muranów.
Spektakl w Teatrze Kamienica.
Kolacja w jednej z restauracji przy Jana Pawła II lub w Norblinie.

---

DLA KOGO JEST TO MIEJSCE?

Dla pary

Miejska baza z kulturą, kawą i pracą w zasięgu kilku minut.

Dla rodziny

Plac zabaw za rogiem, parki, szkoły, przedszkola, szpital św. Zofii.
Bezpieczeństwo, spokój, infrastruktura.

Dla singla

Wszystko na wyciągnięcie ręki.
Zero straty czasu.
Zero kompromisów.

Dla inwestora

Pewny wynajem.
Stały popyt.
Centralna lokalizacja, która nie traci na wartości.


Zapraszam serdecznie do spotkania i po więcej szczegółów :)
Pięknego dnia,
Magdalena Michałowska
794931790

Lokalizacja nieruchomości

Kalkulatory

Kalkulator kredytowy

Wysokość raty

PLN
%

Kalkulator kosztów

Podatek od czynności cywilno-prawnych

Taksa notarialna
(opłata notarialna)

Wniosek o wpis do KW

VAT od prowizji
agencji nieruchomości

VAT od taksy notarialnej
(opłaty notarialnej)

Prowizja agencji nieruchomości

Wypisy aktu notarialnego

Razem

Uwaga: mogą wystąpić dodatkowe opłaty za założenie księgi wieczystej oraz ustanowienie hipoteki.

PLN
PLN
PLN
PLN
PLN
PLN
%
PLN

Agent

Proszę wprowadzić poprawne imię i nazwisko
Proszę wprowadzić poprawny numer telefonu
Proszę wprowadzić poprawny adres e-mail
Proszę zaznaczyć wymagane zgody
Rozwiąż równanie:
28 6
Niepoprawny wynik