Mieszkanie na sprzedaż Legionowo

5 pokoi
64.00 m²
10 156,25 zł/m2
WAW-MS-12555
Oblicz ratę kredytu

650 000 zł

Mieszkanie na sprzedaż
Nowa oferta

Szczegóły oferty

Symbol oferty WAW-MS-12555
Powierzchnia 64,00 m²
Liczba pokoi 5
Liczba sypialni 3
Standard
Okna drewniane
Instalacje nowe
Zagosp. działki niezagospodarowana
Kształt działki prostokąt
Rok budowy 2026
Gaz brak
Woda ciepła - miejska
Dojazd asfalt
Otoczenie działki zabudowane
Ogrzewanie gazowe
Drzwi antywłamaniowe tak
Pomieszczenia
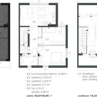
Powierzchnia pokoi 17;13;13;10 m2
Podłogi pokoi wylewka betonowa
Rodzaj kuchni aneks kuchenny - połączony z jadalnią
Powierzchnia kuchni 5 m2
Typ łazienki razem z wc
Liczba łazienek 2
Powierzchnia łazienki [m2] 8 m2
Liczba przedpokoi 1
Powierzchnia przedpokoi 5 m2
Adam Żochowski

Adam Żochowski

Właściciel – manager

Napisz wiadomość 16 Ofert

Opis nieruchomości

Mieszkanie 64m2 w nowo powstającej kameralnej inwestycji budynków w zabudowie bliźniaczej. 

Na parterze odnajdziemy mały hol, by następnie udać się schodami na 1 piętro, gdzie odnajdziemy salon z aneksem kuchennym o powierzchni łącznej 17m2. Poziom ten uzupełniają dwie sypialnie 13m2 i 11m2 przedpokój oraz łazienka. Do dyspozycji mamy również strych, gdzie odnajdziemy przestrzeń, gdzie możemy zaaranżować kolejne pomieszczenia.

W najbliższym otoczeniu mamy żłobek, przedszkole, szkołę, sklepy, tereny zielone i rekreacyjne.

Dojście do stacji SKMki zajmie nam około 10min.

Teren osiedla będzie ogrodzony.

Zakup bezpośredni, brak podatku PCC.

Więcej informacji 516 447 798

Lokalizacja nieruchomości

Kalkulatory

Kalkulator kredytowy

Wysokość raty

PLN
%

Kalkulator kosztów

Taksa notarialna
(opłata notarialna)

Wniosek o wpis do KW

VAT od prowizji
agencji nieruchomości

VAT od taksy notarialnej
(opłaty notarialnej)

Prowizja agencji nieruchomości

Wypisy aktu notarialnego

Razem

Uwaga: mogą wystąpić dodatkowe opłaty za założenie księgi wieczystej oraz ustanowienie hipoteki.

PLN
PLN
PLN
PLN
PLN
%
PLN

Właściciel – manager

Proszę wprowadzić poprawne imię i nazwisko
Proszę wprowadzić poprawny numer telefonu
Proszę wprowadzić poprawny adres e-mail
Proszę zaznaczyć wymagane zgody
Rozwiąż równanie:
27 9
Niepoprawny wynik