Mieszkanie na sprzedaż Warszawa, Bemowo

5 pokoi
97.93 m²
12 900,00 zł/m2
wysoki parter piętro
WAW-MS-12542
Oblicz ratę kredytu

1 263 297 zł

Mieszkanie na sprzedaż
Bez prowizji

Szczegóły oferty

Symbol oferty WAW-MS-12542
Powierzchnia 97,93 m²
Powierzchnia użytkowa [m2] 98,00 m²
Powierzchnia balkonów/tarasów 8,00 m²
Liczba pokoi 5
Liczba sypialni 4
Rodzaj budynku blok
Standard
Piętro wysoki parter
Liczba pięter w budynku 7
Garaż miejsce parkingowe przy budynku
Stan lokalu do odświeżenia
Okna PCV
Balkon jest
Liczba balkonów 1
Rok budowy 2009
Winda tak
Liczba wind 1
Usytuowanie dwustronne
Pomieszczenia
Liczba łazienek 2
Powierzchnia łazienki [m2] 6; 3,5 m2
Wyposażenie łazienki kabina prysznicowa, wanna

Opis nieruchomości

Idealne dla INWESTORA

Bemowo - 98 m² - 5 pokoi - 2 łazienki - loggia - ul. Apenińska

Na sprzedaż przestronne i bardzo jasne mieszkanie o powierzchni niemal 98 m², położone w spokojnej części warszawskiego Bemowa, przy ul. Apenińskiej. To idealna propozycja dla rodzin poszukujących komfortowej przestrzeni lub dla inwestorów, którzy cenią potencjał wynajmu w dobrze skomunikowanej i rozwijającej się dzielnicy.

Atuty nieruchomości:

  • duża powierzchnia 98 m² z dwustronnym układem – ekspozycja na południowy zachód i północny wschód,

  • funkcjonalny rozkład – 5 pokoi, 2 łazienki, garderoba i loggia,

  • możliwość przywrócenia pierwotnego układu (salon z aneksem i 2 sypialnie), W pierwotnym układzie mieszkanie składało się z 3 pokoi - salonu z aneksem kuchennym i dwóch sypialni. Na potrzeby właścicieli zostało podzielone.

  • idealne również jako mieszkanie inwestycyjne pod wynajem,

  • spokojne, zadbane osiedle z dużą ilością zieleni,

  • budynek z 2009 roku z windą, w bardzo dobrym stanie technicznym.

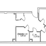
Układ pomieszczeń:

  • kuchnia z jadalnią – 22 m²,

  • pokój I – 21 m²,

  • pokój II – 14,6 m²,

  • pokój III – 10 m²,

  • pokój IV – 8 m²,

  • łazienka I – 6 m²,

  • łazienka II – 3,2 m²,

  • komunikacja – 7 m²,

  • garderoba – 6 m²,

  • loggia – 8 m².

Mieszkanie jest bardzo ustawne i doświetlone przez cały dzień, dzięki dużym oknom wychodzącym na dwie strony świata.

Dodatkowe informacje:

  • do mieszkania przynależy zewnętrzne miejsce postojowe,

  • osiedle zadbane z licznymi nasadzeniami,

  • w budynku znajduje się winda,

  • możliwość zakupu w kredycie hipotecznym (pełna własność).


Lokalizacja:

Świetna lokalizacja łączy spokój i kameralność Bemowa z bliskością miejskiej infrastruktury:

  • sklep – 50 m,

  • apteka – 100 m,

  • kawiarnia – 150 m,

  • przystanek autobusowy – 150 m,

  • szkoła i przedszkole – ok. 500 m,

  • szybki dojazd do centrum – ok. 25 minut.

W pobliżu znajdują się liczne tereny zielone i rekreacyjne, ścieżki rowerowe oraz punkty usługowe, dzięki czemu lokalizacja doskonale łączy komfort życia miejskiego z bliskością natury.


Zachęcam do kontaktu i zapraszam na prezentację tego wyjątkowego mieszkania.
To doskonała oferta zarówno dla rodziny, jak i inwestora szukającego nieruchomości o dużym potencjale.

794 919 790

Lokalizacja nieruchomości

Kalkulatory

Kalkulator kredytowy

Wysokość raty

PLN
%

Kalkulator kosztów

Podatek od czynności cywilno-prawnych

Taksa notarialna
(opłata notarialna)

Wniosek o wpis do KW

VAT od prowizji
agencji nieruchomości

VAT od taksy notarialnej
(opłaty notarialnej)

Prowizja agencji nieruchomości

Wypisy aktu notarialnego

Razem

Uwaga: mogą wystąpić dodatkowe opłaty za założenie księgi wieczystej oraz ustanowienie hipoteki.

PLN
PLN
PLN
PLN
PLN
PLN
%
PLN

Agent

Proszę wprowadzić poprawne imię i nazwisko
Proszę wprowadzić poprawny numer telefonu
Proszę wprowadzić poprawny adres e-mail
Proszę zaznaczyć wymagane zgody
Rozwiąż równanie:
29 8
Niepoprawny wynik